カリオ鵜の木設備&間取り
賃貸だとあきらめがちなのが、バスルームとキッチン。間取りや広さなどは気に入っているのに、トイレとバスルームが一緒、キッチンは電磁式コンロ、しかも狭い、でも賃貸だからしょうがないか・・・とあきらめていた方にぜひともカリオ鵜の木をおすすめします。カリオ鵜の木のバスルームは1216サイズ、キッチンは1Fが1500mm、2Fは1800mmと広々としており、設備もこだわっています。
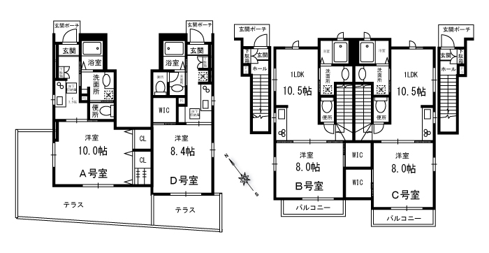
また広さもゆとりもありの間取り。1Kのお部屋でも29.75㎡の広さがあります。床下収納、クローゼットなど収納もたっぷり。こだわりの物件です。





| ●全室エアコン | ●室内洗濯機置場 | ●フローリング | ●ピクチャーレール |
| ●ガスシステムキッチン (1Fは2口、2Fは3口) |
●WIC(A号室はCL) | ●バス・トイレ別 | ●床下収納(A、D号室) |
| ●追い炊き | ●ウォッシュレット | ●TVモニターインターホン | ●浴室乾燥機 |
| ●イッツコム対応 | ●シャンプードレッサー |